Property Detail

10147 Primrose Avenue

Hesperia CA 92345

$625,000

Status: Active

Property Details

Description

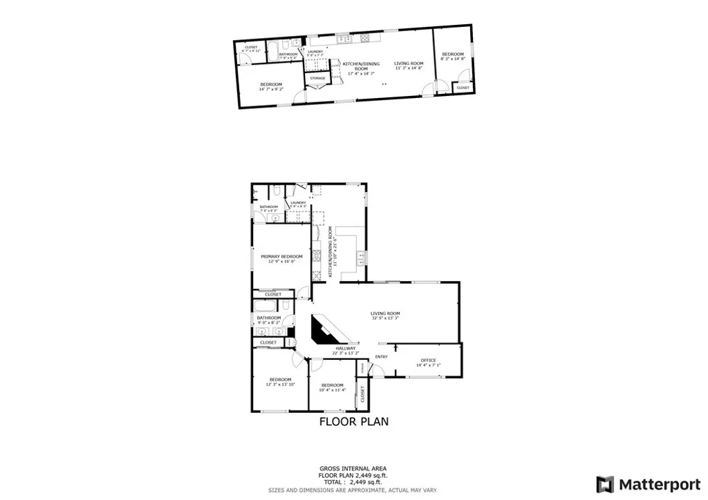
Welcome to your future residence in HESPERIA, featuring two homes on one lot. This charming property offers the perfect blend of comfort and convenience, with plenty of space to enjoy life both indoors and out. Take advantage of this opportunity to purchase a property with a main house and a permitted ADU. Step inside the main home to find a welcoming layout, featuring three spacious bedrooms and two bathrooms. With 1,746 square feet of living space, you have plenty of room to spread out. The home boasts a modern office space, ideal for remote work or hobbies. The living area is equipped with air conditioning, promising cool, comfortable living year-round. The kitchen is well-appointed with essential appliances, and youll love the convenience of having a washer and dryer right in the unit. Not to be missed is the newer ADU, offering an additional 780 square feet of flexible space perfect for guests, multi-generational living, or potential rental income. Plus, with leased solar panels, you can enjoy energy savings and contribute to a greener planet. Outside, the large 19,000 square foot lot provides ample space for your creative outdoor projects or gatherings. Theres even RV parking for your adventurous side! Parking is a breeze with included parking spaces. This home is a perfect blend of functionality and comfort, ready to welcome you in. Dont miss the opportunity to own two homes on one lot!

Map Location

Listing provided courtesy of Jeffrey Hughes of COMPASS. Last updated . Listing information © 2025 SANDICOR.

Marsha Pellar
Inquire Now
admin Real estate 9:00 AM - 5:00 PM 9:00 AM - 5:00 PM 9:00 AM - 5:00 PM 9:00 AM - 5:00 PM 9:00 AM - 6:00 PM 9:00 AM - 5:00 PM 9:00 AM - 5:00 PM https://static.royacdn.com/Site-d44a0d11-0cb1-40e4-949d-cfdf10178d40/Marsha_web.jpg realtor https://www.facebook.com/marsha.pellar1 https://static.royacdn.com/Site-d44a0d11-0cb1-40e4-949d-cfdf10178d40/Marsha_web.jpg