Property Detail

511 Alvarado Street

Redlands CA 92373

$1,190,000

Status: Active

Property Details

Description

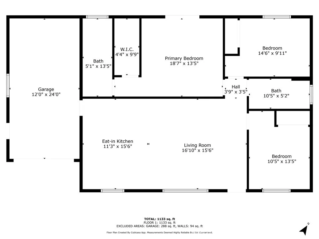
Two properties on one lot! Prime Location on One of the Most Sought-After Streets in Redlands! A rare opportunity featuring two separate homes on one lot ideal for multi-generational living or rental income. The front House (Unit 1) is approximately 1,300 sq. ft. with 3 bedrooms and 2.5 bathrooms. It retains classic Redlands character with thoughtful updates and has been recently rewired and re-piped for added peace of mind. The back House (Unit 2 Newly Built ADU) is 1,200 sq. ft. with 3 bedrooms and 2 bathrooms, newly constructed with paid-off 8 solar panels and a modern electric range, designed with contemporary finishes for comfort and efficiency. Located in desirable Downtown Redlands, this property is close to the University of Redlands, restaurants, shopping, the historic Redlands Bowl outdoor amphitheater home to one of the nations oldest free summer concert series -- the Lincoln Shrine Museum, library and city hall. Convenient freeway access provides easy connections, with Big Bear only 30 minutes away for year-round recreation. This unique property combines historic charm and modern construction in a highly sought-after neighborhood within the Redlands Unified School District, with Redlands Senior High School as the assigned high school (buyer to verify). Unit 2 has a separate electrical panel. Unit 1 with gas range, unit 2 with electric range per city code, shared water meter.

Map Location

Listing provided courtesy of Grace Lee of Century 21 Masters. Last updated . Listing information © 2025 SANDICOR.

Marsha Pellar
Inquire Now
admin Real estate 9:00 AM - 5:00 PM 9:00 AM - 5:00 PM 9:00 AM - 5:00 PM 9:00 AM - 5:00 PM 9:00 AM - 6:00 PM 9:00 AM - 5:00 PM 9:00 AM - 5:00 PM https://static.royacdn.com/Site-d44a0d11-0cb1-40e4-949d-cfdf10178d40/Marsha_web.jpg realtor https://www.facebook.com/marsha.pellar1 https://static.royacdn.com/Site-d44a0d11-0cb1-40e4-949d-cfdf10178d40/Marsha_web.jpg