Property Detail

1435 Orange

Santa Ana CA 92707

$899,000

Status: Active

Property Details

Description

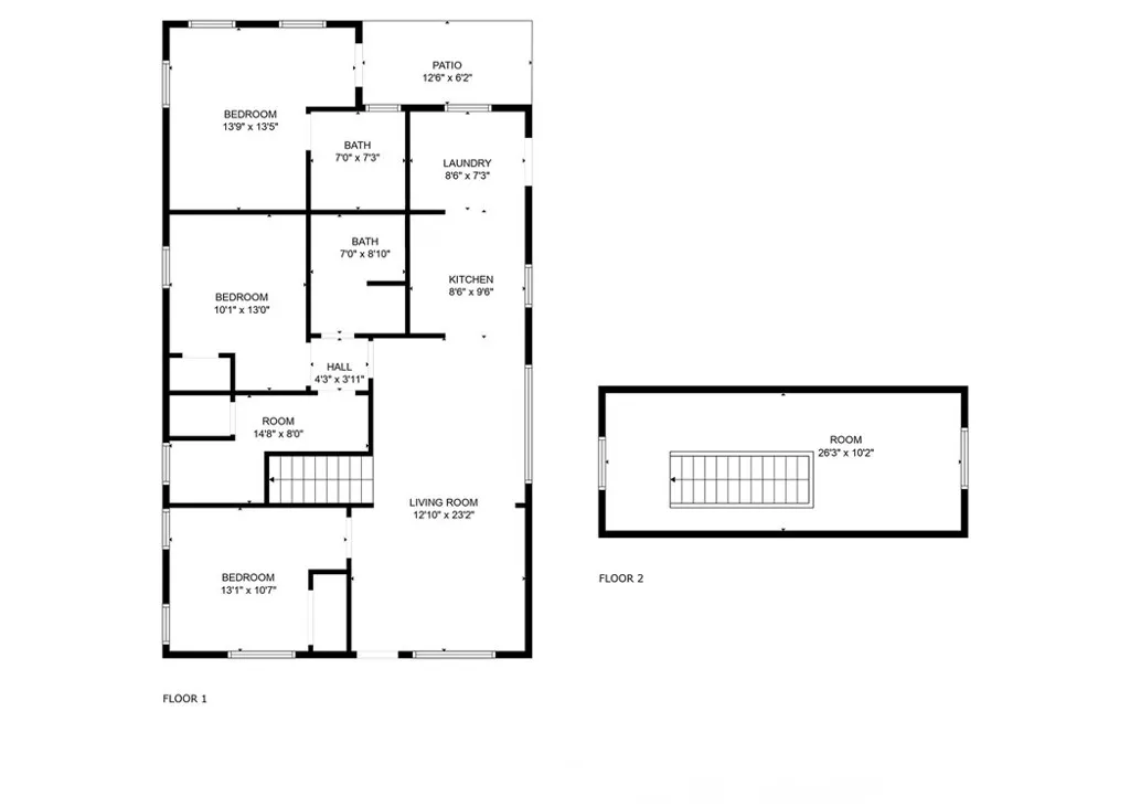
Back on the market!!! Subject to cancellation current escrow. Not fault to the seller. Welcome to 1435 Orange Ave, this charming Craftsman bungalow was built in 1923 and is located in the established Madison Park neighborhood of Southeast Santa Ana. The seller purchased the property and immediately set out to improve its condition. The updated features include a renovated kitchen and bathrooms, new laminate flooring, new paint, new recessed lighting, stainless steel appliances, a new HVAC system, a new wrought iron fence and gates, and many more upgrades. This amazing property is perfect for a large family. The main home has three bedrooms, one full bath, a large living room and dining room combination, a galley kitchen with an adjacent laundry room, and a huge loft on the second story. Theres also an attached one-bedroom, one-bath ADU with a separate entrance that can generate income. The exterior features include a mature landscape and plenty of room for improvement , with a lot size of approximately 7,500 square feet. This provides ample space for adding on more living space. The home also has a new wrought iron fence that offers privacy and security, and a large driveway that can accommodate multiple cars and RV parking. Note: the sellers purchased the house as it currently stands, buyers to satisfy their own needs about any and all permits.

Map Location

Listing provided courtesy of Luis Zapata of Re/Max Champions. Last updated . Listing information © 2025 SANDICOR.

Marsha Pellar
Inquire Now
admin Real estate 9:00 AM - 5:00 PM 9:00 AM - 5:00 PM 9:00 AM - 5:00 PM 9:00 AM - 5:00 PM 9:00 AM - 6:00 PM 9:00 AM - 5:00 PM 9:00 AM - 5:00 PM https://static.royacdn.com/Site-d44a0d11-0cb1-40e4-949d-cfdf10178d40/Marsha_web.jpg realtor https://www.facebook.com/marsha.pellar1 https://static.royacdn.com/Site-d44a0d11-0cb1-40e4-949d-cfdf10178d40/Marsha_web.jpg