Property Detail

1725 Eagle Road

Rialto CA 20448

$646,222

Status: Active

Property Details

Description

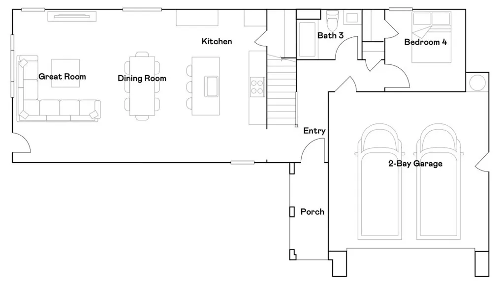
NEW CONSTRUCTION! Includes Upgraded Flooring! This new two-story home offers ample room to live and grow. On the first floor, an open-concept floorplan makes entertaining and multitasking simple, with a nearby bedroom providing the perfect spot for an office or guest suite. Three additional bedrooms are located on the second floor, including the luxurious owners suite, just steps from a versatile loft. Aviator brings new single-family homes to the Renaissance masterplan, now selling in Rialto, CA. The gated community offers an amenity-rich lifestyle with an onsite swimming pool, playground, dog park, tot lot and much more. Residents will be a short drive from shopping, dining and entertainment options at the Renaissance Marketplace. Renaissance boasts a prime location near the I-210 and I-15 freeways, offering easy commutes to Los Angeles, San Bernardino and other surrounding areas. Plus, the community is conveniently located near top universities such as California State University, San Bernardino (CSUSB) and the University of California, Riverside (UCR), providing excellent opportunities for higher education.

Map Location

Listing provided courtesy of Todd Myatt of Century 21 Masters. Last updated . Listing information © 2025 SANDICOR.

Marsha Pellar
Inquire Now
admin Real estate 9:00 AM - 5:00 PM 9:00 AM - 5:00 PM 9:00 AM - 5:00 PM 9:00 AM - 5:00 PM 9:00 AM - 6:00 PM 9:00 AM - 5:00 PM 9:00 AM - 5:00 PM https://static.royacdn.com/Site-d44a0d11-0cb1-40e4-949d-cfdf10178d40/Marsha_web.jpg realtor https://www.facebook.com/marsha.pellar1 https://static.royacdn.com/Site-d44a0d11-0cb1-40e4-949d-cfdf10178d40/Marsha_web.jpg